
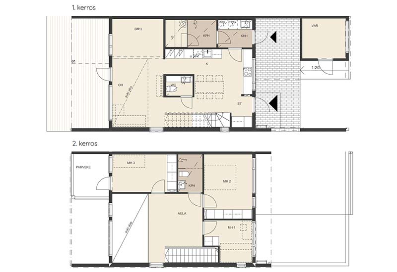
Palokan Kotirinne – Haukkalinna asunto A8
4-5h+kt+s
111,5 m²
Osoite: Haukkamäenkuja 8, 40270 Palokka
Katso Googlemapissa >>
– Asunnon hintaan sisältyy oma n. 7,5 m2 lämmin varasto.
Haukkalinnan esittely ja myynti:
OP Koti
Soita: 010 256 5950

Parasta Palokkaa
Parasta Palokkaa on sopivin ilmaus kuvailemaan Kotirinteen hirsitalokorttelin sijaintia. Länteen viettävä rinne on valoisa koko päivän; aurinko kiertää rataansa vastakkaisella taivaalla aamusta iltaan ja lämmittää hirsitalojen terasseja ja piha-alueita.
Parasta Palokkaa värittävät myös hyvät, miltei täydelliset palvelut kävelyetäisyydella Kotirinteen asunnoista. Kaupan palveluja on kilometrin päässä niin paljon, että tuskin kaikkia edes muistaa. Jokainen löytää suosikkibrändinsä päivittäistavarakaupan, sama arvostaako laatua, edullisia hintoja vai ehkä molempia: läheltä löytyvät Keskon ja SOK:n automarketit, Lidlin halpamyymälä sekä myös Alko ja Apteekki.
Parasta Palokkaa ovat myös hyvät varhaiskasvatuksen ja perusopetuksen palvelut. Vieressä on vasta remontoitu ja laajennettu päiväkoti sekä hyvätasoinen alakoulu (luokat 1-6). Yläkouluun matkaa on muutama kilometri, samoin Palokan terveyskeskukseen, joka säilyvänä yksikkönä laajenee ja monipuolistuu.
Parasta Palokkaa ovat erinomaiset ulkoilumahdollisuudet. Lenkkimaastot alkavat kotipihasta, lähimetsät pullistelevat marjoista ja sienistä. Järjestetyt liikuntapalvelut löytyvät lähietäisyydeltä, matka ei ole mahdoton esimerkiksi Laajavuoren erinomaisille harrastuspaikoille, joihin kuuluu myös suosittu Scandic Spa. Palokan Pelimannitalo lähes naapurissa on monien tilaisuuksien ja juhlien koti.
Paras Palokka päihittää liikenteellisesti monen muun asuinalueen. Moottoritiet vievät sekä etelään että pohjoiseen. Jyväskylän keskustaan hurauttaa muutamassa minuutissa, bussit ajavat keskustaan useita kertoja tunnissa, eikä pyöräilymatkakaan ole kuin reippaat viisi kilometriä.
Jokainen asunto tehdään kuin itselle
Olemme ylpeitä työmme jäljestä, sillä jokainen tekemämme asunto on sellainen, että voisimme muuttaa siihen itsekin. Siksi meillä ei ole tarvetta kiirehtiä, vaan teemme rauhassa jälkeä, joka kelpaa myös omalle kriittiselle silmälle. Loistokodit on tehty viimeisen päälle.
Haluamme tehdä Loistokotien asukkaat, asiakkaamme tyytyväisiksi. Pintoihin ja yksityiskohtiin on mahdollista vaikuttaa aina muuttopäivään asti. Asuntojen pohjaratkaisut ja toimivuus ovat harkittuja ja materiaalit laadukkaita. Kun asiakas on tärkein koko henkilökunnalle, myös sisäinen laadunvalvonta toimii tiimin kesken.
Parhaaseen Palokkaan, aurinkoiseen rinteeseen rakennettavan Asunto Oy Jyväskylän Haukkalinnan rakennustyöt ovat käynnissä. Ensimmäinen odotettu, hirsinen Loistokoti-rivitalo (Haukkapuro) valmistui kesällä 2023.
Kotirinteeseen valmistuu yhteensä 4 taloa joihin 32 uutta upeaa hirsikotia. Talot nousevat länteen laskeutuvaan rinteeseen, jossa kotisi pihaan ja terasseille aurinko paistaa esteettä koko päivän.


